ZSZB-D型全自動紙杯成型機是我公司結合國內外中速紙杯機通過全面技術改進研發的全新機型,通過多分排自動送紙、超聲波或加熱焊接、機械手紙筒轉移、注油、沖底、翻底、預熱、滾花、卸杯等連續工序生產各種不同規格紙杯。整機采用縱軸傳動系統、開放間歇式分度結構、齒輪傳動、定時噴淋注油潤滑的方式,制杯全程光電跟蹤監測,是原三轉盤鏈條傳動低速機型理想的更新換代產品。
如果您需要雙PE涂層紙杯或更高的克數250g / m2,我們建議您使用超聲波紙杯機,它可以生產單pe涂層紙杯和雙pe涂層紙杯。
技術參數
| 型號 | ZBNB-D |
| 適用規格 | 3-12盎司(可更換不同模具) |
| 紙張材料 | 150-380克/平方米 (單雙面淋膜紙張) |
| 生產效率 | 50-60只/每分鐘 |
| 電源要求 | 220伏、380伏 50赫茲(請告知我們您的先進動力) |
| 功率 | 4千瓦 |
| 重量 | 1500千克 |
| 包裝尺寸 | 2500 x 1400 x 1700 毫米 |
| 工作壓力 | q氣壓 0.4兆帕;空氣輸出:0.6立方米/分鐘 |
|
|
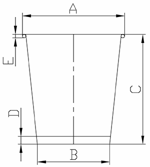
A:上口直徑 最小45毫米--最大90毫米B:下口直徑 最小35毫米--最大75毫米 C:紙杯高度 最小30毫米--最大115毫米 D:翻底高度 最小4毫米--最大12毫米 E:卷邊直徑 通常 Φ2.5---Φ3 |
優勢與改進:
1.采用齒輪傳動系統代替鏈條傳動,運行更穩定,速度更快。

中文
English
Pусский
Espa?ol
???????



浙公網安備 33038102332058號